筏板封边大样图怎么弄求大神指点

相关图片

筏板阴阳角封边区别

免费获取16g1013独立基础条形基础筏形基础桩基础三维图集

16g101一3图集独立基础的做法

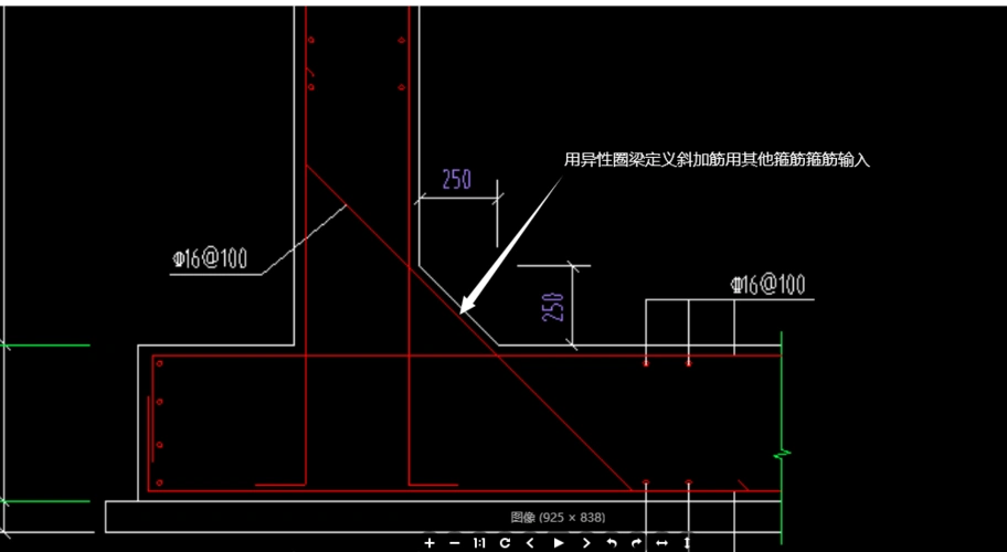
筏板封边筋

筏板封边构造

随机推荐

创意妆容##我的秋冬创意妆容##时尚创意妆

angelababy婚纱照

风景壁纸,唯美,小清新,花卉,风景,高清,樱花,意境,壁纸,1920x1200

回家,车子开到长安路附近时,他透过车窗看到路面上散落着数张百元大钞

寻寻觅觅,兜兜转转半辈子!总想找一个心底的那个人!

朴彩英oioi代言人##朴彩英oioi代言人##朴彩英oioi代言人

抖音最火伤感带字说说文案 - tt98图片网

韩国粉丝认为这三个新人女团组合 在第四代女团中星途一片光明|k-pop