款7603男士秋装针织开衫男薄款针织衫线衣韩版休闲外套男潮

相关图片

yuansu男士夹克外套男秋装上衣宽松休闲中年男装运动速干春秋新款夹克

new lake秋季毛呢外套男潮流帅气男士呢子夹克春秋款休闲秋装上衣秋冬

春秋季中老年男夹克上衣爸爸装薄款秋装纽扣翻领男装全棉休闲外套

秋季外套男大码休闲夹克男春秋宽松中年男士秋装上衣男装2021新款

才子夹克外套男潮牌男装2020秋冬季新款韩版潮流男士秋装上衣工装

随机推荐

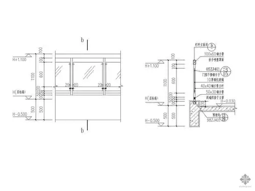
不锈钢栏杆扶手节点详图

关之琳近况曝光,身家超过5亿元,还将4亿多财产留给亲弟弟!

虽然梁影帝在演技上非常出色,但在模仿张国荣的吸烟镜头时,总觉得少了

超干净磨砂壁纸背景图

小鬼- 堆糖,美图壁纸兴趣社区

开心麻花春节喜剧《超能一家人》曝新预告|开心麻花|春节-华语电影

12-15岁少女魅力发型指南,时尚与实用并存的个性选择

继meiko,刘青松道歉后,直播也禁掉了这两个字!