花草树木动画图片展示④

相关图片

花草树木gif动画素材(黑底) - 理睬 - .

【免抠透明动态花草】〖小装饰物〗 - 在水一方 - 在水一方娱乐博客

【转载】【自制透明gif图片】花草系列04

动态花卉_百度图片搜索

秋思梦境自制透明gif图片花草系列

随机推荐

闫妮身着牛仔衣一身休闲装现身机场 素颜亮相口罩遮面

记录王凯超话#王凯青春环游记#几张白衬衫的微博头像尺寸还有漏发的几

刘亦菲简约大气精致侧颜写真图片

气质简单成熟多人闺蜜女生头像 气质女人味的微信头像(17张),闺蜜_刻

小别离:琴琴学习成绩,是佳妮最能拿出手的,如今竟打算送她出国

于正公司发艺照,许凯白鹿位置变动,表明"一哥一姐"_演技_军校_烈火

牛顿最重要的物理学贡献,除了牛顿三大运动定律以外,就是万有引力定律

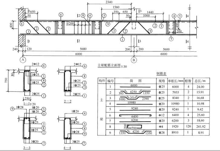
钢筋混凝土结构施工图识读教程