昨日春分的日子适合看点嘟嘴的刘耀文……_高清图集_新浪网

相关图片

刘耀文亮晶晶大眼萌攻击合集(动图极多)

刘耀文可爱大放送自拍时嘟嘴是什么小可爱啊好想把奶丸子揣回家

内娱男明星颜值#刘耀文动图合集9615刘耀文那些可可爱爱的日常!

刘耀文剪短发了##刘耀文中国移动动感地带芒果卡代言人

你们的小可爱刘耀文

随机推荐

易烊千玺,今日份奶萌小可爱

个性潮酷文字壁纸

upr系列优普纯水机

ceci star##茜茜姐妹2021年11月刊##李钟硕初秋冷调大片

吴莫愁可真敢穿黑色吊带连身装配透视罩衫欧美风穿搭新潮大胆

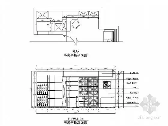
家装各类柜子立面成套cad图块下载

游泳卡通人物

山体滑坡落石.jpg