师范学校艺术楼结构加固施工图- 结构图纸 - 沐风网

相关图片

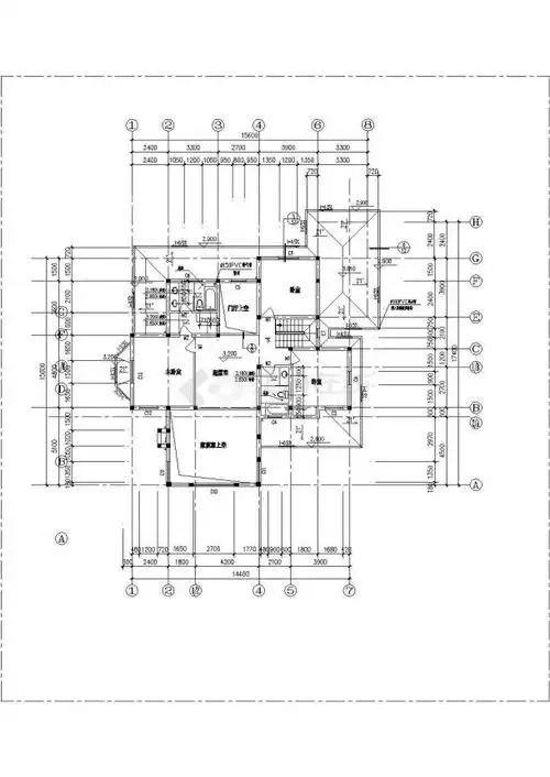
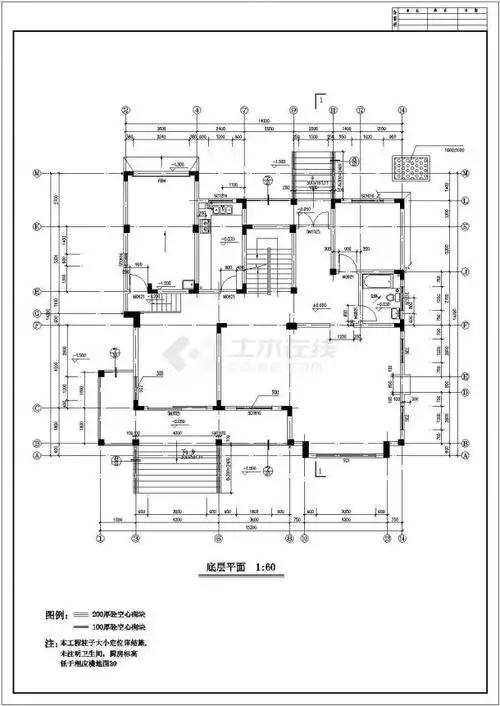
某两层私家小别墅建施图附效果图

建筑功能:其他 高度类别:单层建筑 地上层数:1层 图纸深度:施工图

某村通用住宅楼建筑结构cad设计施工图纸

欧式风格豪华别墅建筑设计施工图

一层客厅d立面图,二层次卧a立面图,二层卫生间a立面图等,图纸内容完整

随机推荐

鱼子酱图片_图片大全

海边海岸礁石黑白摄影图片

小清新唯美日系日本城市街道

红色玻璃胶大红铁红密封胶红木彩色木纹中国红结构胶美容封边硅胶

火箭少女101立风专辑单人海报图片13

新年青龙剑竹制刀剑玩具景区庙会地摊卖儿时玩具武士手工制作木刀

流行歌曲口琴简谱集doc63页

铠威复兴号和谐高铁合金汽车模型声光磁力地铁动车火车儿童玩具车