新品上市pop字体

相关图片

绿色新品上市海报

新品上市

新品上市艺术字图片大全

新品上市艺术字体设计

夏季新品上市海报

随机推荐

唐嫣和钟汉良其实,钟汉良也能看出一些油腻感了,却总能主演古偶,现偶

青春洋溢少年肖战帅气写真,高清图片,手机锁屏桌面-壁纸族肖战高清

方媛携孩子助阵郭富城演唱会2个女儿近照曝光颜值像极了妈妈

炒鸡温柔的可爱古风发型,女儿妈妈可以一起扎!

周杰伦 你听得到 4k mv

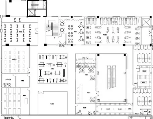
【已回复】一个新人设计的健身房平面望大神指点!

小鬼王琳凯治愈笑容合集可可爱爱可爱鬼,笑起来真的太有感染力了

盘点中国好声音的11位冠军,根据唱功你认为谁是内定的呢?