鼠尾草唯美花卉高清桌面壁纸

相关图片

雨后鼠尾草#山东摄影家俱乐部#最满意的风光照#卖图晒单分享#风光摄影

鼠尾草

鼠尾草图片_鼠尾草图片大全_鼠尾草图片下载

蓝色鼠尾草,原创拍摄

鼠尾草石见穿蓝色宿根冬根草花庭院花园盆栽春季宿根

随机推荐

二次元治愈系星空系列插画图集!天阶夜色凉如水,坐看牵牛织女星

小清新意境唯美阳光壁纸

范冰冰被曝即将奉子成婚?大肚子已经藏不住了?

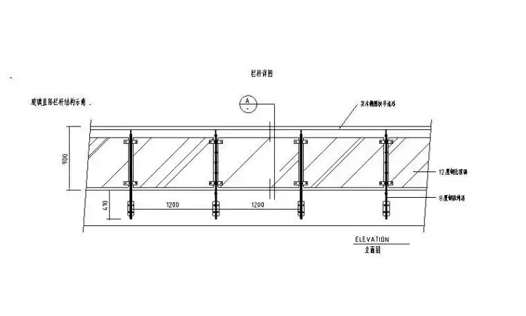
玻璃栏杆结构详图

七龙珠龟仙人头像好看的七龙珠动漫龟仙人头像图片

宝马(进口) 宝马x7 2020款 xdrive40i 尊享型m运动套装

《赌神》精彩片段,周润发的经典之作,至今让人印象深刻

商用电饼铛80型饼铛烙酱香千层饼机器妖怪烤饼铛双面加热定时控温台式