第10讲 避粱平开门衣柜设计

相关图片

二门衣柜尺寸是多少

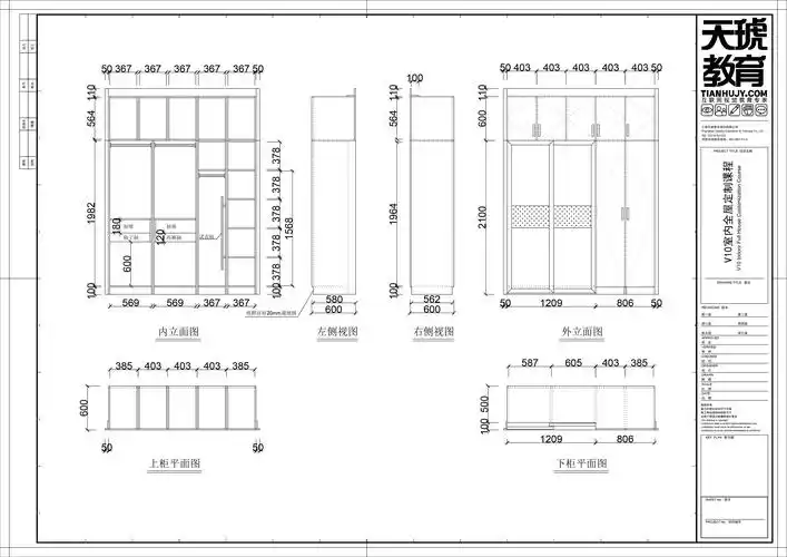
绘制下单图---平开门衣柜(拓展作业)

厂家直销三门上下滑移门衣柜简约现代整体衣柜 移门大衣柜衣橱特

德家家具趟门衣柜韩式田园推拉门衣柜卧室实木衣柜简约衣橱衣帽间

绘制下单图---推拉门衣柜

随机推荐

金馆长笑容发光你以为本叼会怕你gif动图_动态图_表情包下载_soogif

康师傅辣香菇卤香牛肉面107g(单包//五连包/桶装)

刘德凯(中国台湾男演员)_摘编百科

伍六七头像 - 暗影刺客首席 代号"柒" - 抖音

新房 恒达盘龙湾荷苑 户型图 a0户型 居 室: 5室2厅3卫1厨 建筑

"深夜谈剧本"6年,这三位当事人的差距一目了然,原来早有预兆_刘恺威

柯蓝是将门之后,比起韩雪,她才是真正的出身显赫.

瞧瞧:撒娇的正确打开方式?