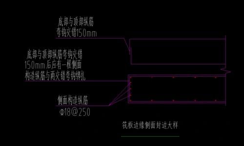
筏板边缘侧面封边钢筋节点锚固长度如何设置封边钢筋在哪里输入

相关图片

筏板侧面封边构造筋布置方式

建筑人16g101图集常用节点及构造做法

从图集来看筏板侧面与外墙平面是按照外墙防水做法做的吗谢谢解答

16g101一3图集独立基础的做法

筏板封边构造

随机推荐

男士短发造型2022,简单干净又显帅气!_发型造型_宝妈时尚生活网

bioware圣歌游戏壁纸壁纸

ai壁纸 #手机壁纸 #唯美意境 #人间仙境美如画 #愿所 - 抖音

十二星座专属名女生天秤座12星座唯美古风名字

服刑16年赚30亿,一场生日宴6个主持人被封杀,周正毅什么来头_上海

基德_名侦探柯南怪盗基德日系我要上首推头像插画绘画作品

努力到无能为力-拼搏到感动自己说课讲解.pptx

【老粗布凉席儿童】老粗布凉席儿童品牌,价格 - 阿里巴巴