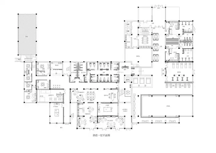
一个酒店大堂平面-平面规划-马蹄室内设计论坛-序赞网

相关图片

莆田凤达酒店

大厅布局图

烟台市精品酒店大堂实景图和设计规划图

[ccd&abconcept&afso]广州康莱德酒店丨公区 客房装修施工图

香格里拉大酒店一楼平面图

随机推荐

(点击图片自动进入下一页) 父母贩毒坐牢,4岁被送到庙里,10岁注射

华晨宇笑起来真好看

庙底沟遗址

长歌行漫画

雪中悍刀行李淳罡图片

中国十大风景名胜之一,桂林山水是中国山水的代表

春暖花开,教你自制几个木花盆,把春天装进家

洪雨雷翻唱《流星雨》少年感十足,像极了花泽类!