某5层酒店消防图纸

相关图片

某四层框架结构办公楼消防电气施工图

某地下车库消防设计图纸

广东某市场给排水消防设计图- cad建筑图纸 - 沐风网

消防栓标准图集 - autocad其他详图∕图库图纸 - 沐风图纸

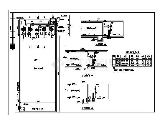
室内消火栓安装cad图

随机推荐

原创盘点首位200亿票房演员沈腾的吸金作品哪一部没看过呢

王俊凯——一个正能量满满的赤诚少年!

风景动态图片大全,唯美风景动态图片(一起感受大自然的山水奇观)

端大气很有范的欧美美女,高清图片,电脑桌面-壁纸族

谭维维老公是谁 谭维维结了几次婚大揭秘

蒙面歌王退隐莲花神秘重出江湖

古天乐的绯闻女友,个个花容月貌,最后一位竟已香消玉殒

国民党原品镀金胸徽