办公楼屋顶花园景观设计cad平面施工图

相关图片

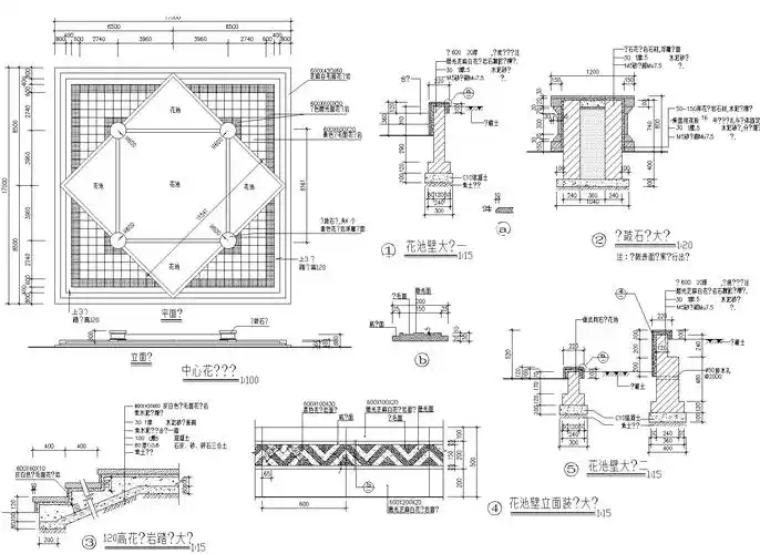
4 景观设计制图

20套公园景观设计施工图cad,一定有你需要的!

20套公园景观设计施工图cad,一定有你需要的!

[重庆]天骄年华景观工程全套施工图 纸

[中国]某居住区翠茵豪庭景观设计全套施工图(包含 89个cad)

随机推荐

双人情侣头像超甜高清卡通情侣头像呆萌一对

肖战美图

独家:赵丽颖全素颜接受采访, 一个完全没有偶像包袱的明星_情感_成长

汽车金融大航海时代十万亿市场机会与暗礁并存

同人不同命!"tvb五虎将"刘德华曾被雪藏,梁朝伟背锅数十年

关于海边的唯美句子_经典唯美句子 一,海浪抚摸着孩子的脚丫,给他挠

图为效果图,设计师给他家设计了一整面墙的柜子用作手办展示,是不是你

当前位置:>首页>装修案例>富力城华庭166平米现代风格案例赏析>800