金星小儿子中英文切换自由和鲁豫打招呼暴露家教金星谈孩子

相关图片

金星的儿女有多优秀?东西方文化融合教育,仨孩子一个比一个懂事

图毒舌金星儿女照片曝光三个孩子都曾是弃婴

几天前,金星带女儿妮妮现身街头,被拍到了.

悉心呵护养子!金星20年前领养的三个孩子,现如今这么样了

金星女儿现在照片

随机推荐

《疯狂的赛车》黄渤和徐峥名场面,十八相送,一条龙服务!

2020藏滇桂自驾游黑白照片

中国风手绘淳朴包饺子文化海报背景素材

倪妮恋情,倪妮的男朋友是谁?倪妮之前的男友都是合约情侣?

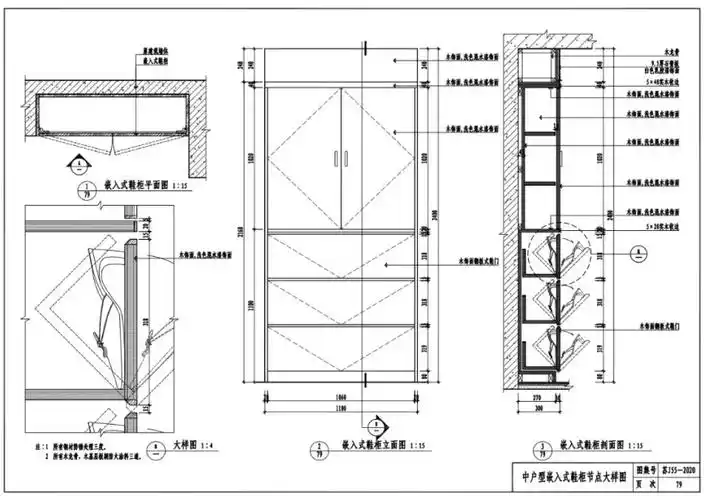
中户型嵌入式鞋柜节点大样图

56岁女星那英暴瘦认不出脸部皱纹明显表情沧桑与过去判若两人

惊艳漂亮花朵大图壁纸素材,自然花海风光_网易订阅

毛线钩织 #毛衣 #钩针图解