1536_2560竖版 竖屏

相关图片

626明星小姐姐狗狗全屏壁纸

小狗不说话 但是小狗爱你#手机壁纸 #送你一张壁纸 #萌宠 - 抖音

壁纸 | 狠狠心动的珍藏壁纸

卖萌小狗来敲门iphone动物高清壁纸集

可爱的小狗和相机 iphone 壁纸

随机推荐

p站美图推荐——西装男子特辑-动漫之家新闻站

王俊凯:这俩孩子,我从小抱到大[微笑] #tfboys搂肩# #王俊凯王源易烊

仙女头像梦幻漂亮可爱图片

华为mate50高清美女背影壁纸

12

春夏装2019新款收腰黑色v领波点法式复古连衣裙长袖气质少女长裙

官67帽上的宝石,细数清朝官员官帽上的顶珠_腾讯新闻

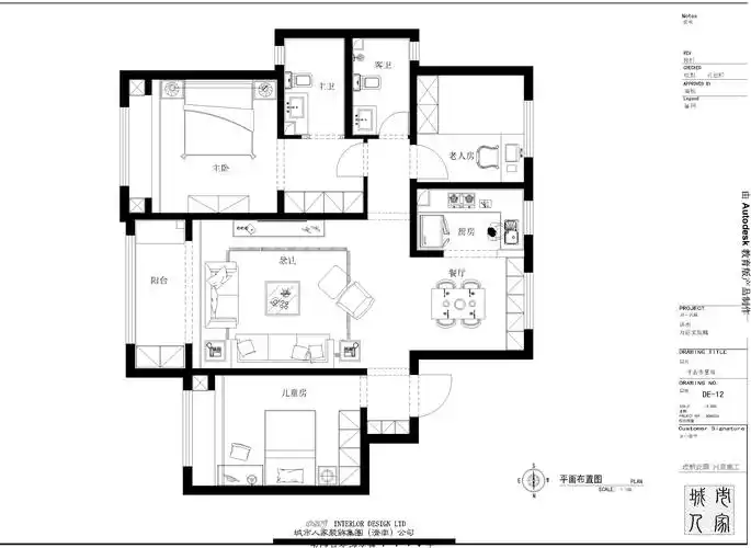
万达文旅城130平户型图