第六讲 鞋柜设计

相关图片

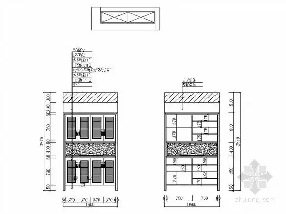
鞋柜立面图.jpg

ipad手绘柜体画法分解procreate

手绘一点透视玄关鞋柜内部结构设计及画法技巧 -全民小视频

鞋柜立面图

鞋柜立面图

随机推荐

林志玲合集写真_网易订阅

男生发型合集/男士发型/根据脸型设计发型.#发型 #男士发型 - 抖音

夏天男士短发就得这样烫(50款)_发型_网络_内容

无烧红宝石项链

周深新歌意犹在,古风造型卡点!

小男孩做鬼脸

动漫#动漫里男主小时候到底有多可爱

欧美风吸烟男生头像