某酒店前台施工说明

相关图片

cad平面图施工图平面图布置图cad素材服务台上视图柜台前台施工图说明

办公楼前台详图

某酒店前台施工说明

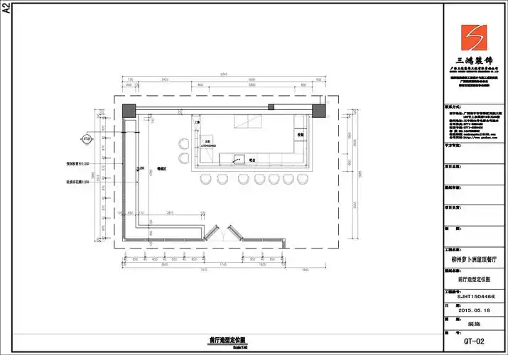
前厅施工图

前台制作详细图

随机推荐

成人提升学历,该如何选择❓

疯狂外星人,电影好看,搞笑又温情 搞笑又温情的动画电影《疯狂外星人

"柳飘飘x尹天仇 | 张柏芝x周星驰 | 喜剧之王 | 剧情加长版

林更新爱情终于触礁他用这句话挽回女友结果却

苏泊尔supor电饭煲cfxb40fc815575球釜4l智能大容量电饭锅

胎盘植入海扶手术保留子宫病历分享_治疗

snh48成员黄婷婷时尚写真,高清图片,电脑桌面-壁纸族

歌谱女儿情