多少设计师在画施工图的第1步就错了

相关图片

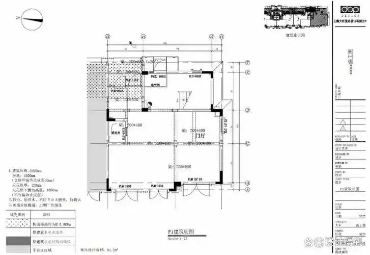
平面施工图-给水布置图,排水布置图

家装施工图代画:8元一平.生活就是一场穷的掉渣,富的流油的差 - 抖音

郑州量房服务代画出施工图cad工装家装商铺测量绘制原始户型图纸

施工图绘制步骤(白)ppt

某园林管理用房多专业施工图

随机推荐

三星hdr 4k 演示片 - 仙境(hevc 10bit) [2160p/ts/995mb]_4k资源交流

原创欧阳娜娜被粉丝要求卸妆看清她素颜后网友求你别再化妆了

宠物眼镜狗狗墨镜狗眼镜金毛哈士奇太阳镜犬用防护眼镜大狗墨镜

哎呦喂,15岁的小男生原来就长这样子.突然想起来一句话,别人 - 抖音

qq头像面具图片大全有点恐怖的面具qq头像

rpg—火箭筒绘画 重武器

镜片依视路蓝光160钻晶a4超薄167变色a3定制眼镜片

粉色- 堆糖,美图壁纸兴趣社区