云渲染效果图

相关图片

钢结构厂房外立面铝板厂房效果图设计,玻璃幕墙工厂外立面效果图设计

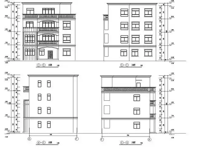
三层欧式别墅建筑方案设计(包含效果图)

立面图和灯光效果图

[南昌]新力洲悦法式半岛风格样板房装修施工图 高清效果图

砖混结构户型三层新农村单家独院式别墅建筑施工图(cad 效果图)

随机推荐

邓光荣老婆是谁

中长发女生一定要烫一次超级好看 - 抖音

jk制服少女可爱甜美写真图片壁纸

鹿角巷奶茶店亚克力吸塑灯箱led单双面圆形广告悬挂户外壁挂定做

四川95后女孩独腿撑起网球人生

游记分享巨杀猫2017年西湖音乐节只能用挤距离来抵抗焦距不足了赵雷

欧美防水台高跟短靴大牌同款防水台马丁靴2

韩国终于离中国而去在中美之间选边站赵立坚不要玩火