室内设计客厅立面图

相关图片

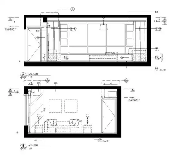
客厅立面图

家居空间手绘文本平立面图客厅卧室效果图

[分享]电视背景墙立面图及节点图资料下载

沙发背景墙立面图

马克笔手绘立面图上色步骤分解室内设计

随机推荐

明代万历瓷器价值几何?请看成交纪录

王一博同款奶瓶项链街舞3时尚个性别致情侣嘻哈周边明星百搭吊坠

古风宫装少女高清桌面壁纸

张艺兴1米78,范丞丞1米83,吴亦凡1米87,没有对比就没有伤害!

动态壁纸暗黑破坏神死亡天使ai高清修复

五月天《诺亚方舟10周年进化复刻限定版演唱会》8场航行 无限循环

当年第六名再唱《蝴蝶泉边》全场沸腾了!

壁画_背景墙_a03243(j3)中式水墨江南水乡房子柳树渔船马头墙飞鸟国画