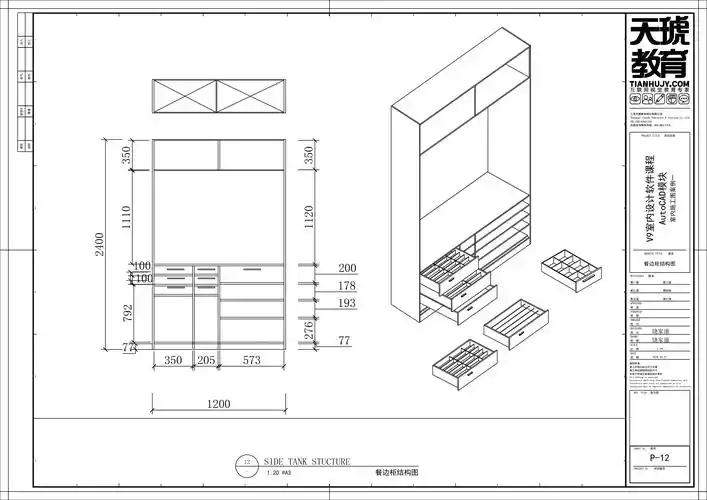
第六讲 鞋柜设计

相关图片

绘制下单图鞋柜

手绘鞋柜效果图

cad三视图|cad下单图|酷家乐效果图 92橱柜|衣柜|酒柜|鞋柜|阳台柜

第六讲 鞋柜设计

【入户系统】鞋柜样柜一

随机推荐

哥特式暗黑系邪魅帅气男生动漫头像

时令虽快入了三九,明星的衣衫却越发的少,组团的变成仙女浑身冒着仙气

景甜美女明星手机壁纸

18k白金70分vvsh色经典六爪钻戒

tnt壁纸来了#tnt #tnt时代少年团壁纸 #壁纸 #时代少年团 #壁纸

赛博朋克2077柯克眼镜mod介绍与使用攻略 - g983下载站

视频中,杨晓丽先是简单介绍了自己,并一一回答了网友提出的疑问,自曝

女生海边一个人看海头像