宅基地面宽10米,进深12米,农村自建房如何设计比较好?

相关图片

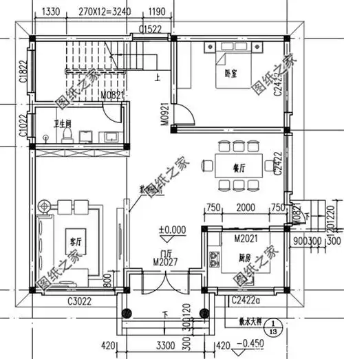
10米x12米自建房设计图,下一个建房的就是你

10米x12米自建房设计图,下一个建房的就是你

宝(水泥添加剂),镀锌楼承钢板;现浇实心墙体轻钢别墅,自保温复合墙体

农村10米x10米两间三层平顶楼房设计图,主体花30万建好 - 盖房知识

农村建房开间11.5米,深10米,一楼要三个卧室,怎么设计比较好?

随机推荐

男生头像冷酷帅气黑白伤感

简笔画动物图片大全 小动物简笔画大全可爱

杨颖美得让人心动粉色t恤配百褶裙甜美如少女扮美穿搭有一套

qq头像绅士图 头像图片大全 -【爱个性】

教你通过拆iphone 7掌握智能手机拆机技巧

手机壁纸不知道怎么选?这里有12张最好看的美女壁纸供你选择

南通理工学院海安校区 问答贴

真是一点脾气的都没有! 是全剃没毛病啊!