透水混凝土剖面图

相关图片

[分享]车行沥青路剖面图资料免费下载

园路剖面详图9

大体积混凝土施工工艺 所示:图1 大体积混凝土测温点设置剖面示意图 2

砖外墙. 6.砖内墙. 7.钢筋混凝土基础模板工程量. 8.

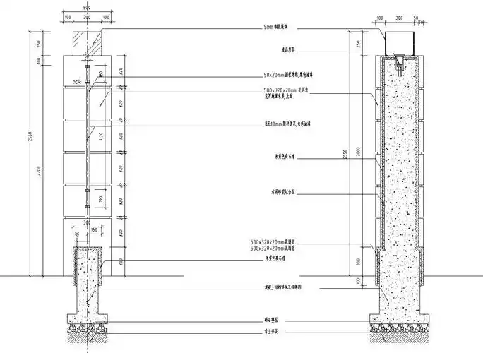
围墙设计详图(混凝土 铁艺)——知名景观公司景观

随机推荐

赌侠1999这才叫大叔范儿刘德华颜值爆表饰演赌侠气场十足

周杰伦_磁带/卡带_博茹阁【7788收藏__收藏热线】

四人闺蜜头像#可爱头像女卡通呆萌 #可爱到爆炸99 - 抖音

今天的小超是糖炒栗子味儿任嘉伦金丝眼镜look温柔满分

"八阵图"究竟长啥样,如果真那么厉害,诸葛亮为何不多摆一点?

小僵尸头像多人

屈原跳的是什么江在哪里屈原一生忠于楚国