现代三居装修施工图-住宅装修-筑龙室内设计论坛

相关图片

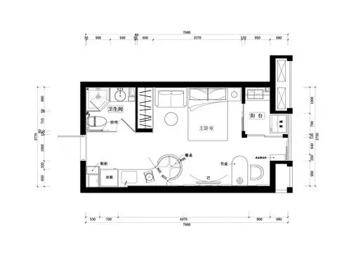
三居室现代样板房室内施工图设计

全套家装施工图绘图模板他来了#室内设计 #cad画图 #施工 - 抖音

中西合璧混搭风格家居施工图设计-住宅装修-筑龙室内设计论坛

时尚简约施工图室内设计(附效果图)

某星级酒店豪华客房室内装修设计cad全套施工图甲级院设计

随机推荐

52岁金星深夜晒照庆生,露性感美背女人味十足,老公全程陪玩!

三十四岁的何穗,迷人的模特和国家芭蕾舞团_中央芭蕾舞团_魅力_故事

紫郁性感金色高跟凉鞋2017细跟防水台一字扣带凉鞋露趾高跟鞋

看完雷佳音读上戏时帅哥圈,就理解他为啥说:我没想过走偶像路线

人比花娇,温婉动人!#图文伙伴计划 #古风美人 #壁纸分享 - 抖音

何洁似乎处于中游水平,她的幽默和"颠颠"的精神已经吸引了许多人注意

高清:《怒放》曝孽缘剧照 宋允皓李曼上演虐恋

男生抱着猪头像