豪门确实难进这4位女星娃都生了直到分手都没等来一场婚礼

相关图片

豪门确实难进这4位女星娃都生了直到分手都没等来一场婚礼

豪门确实难进这4位女明星娃都生了直到分手也没等来一场婚礼

回顾孙怡董子健离婚真相是娱乐圈的残酷还是家庭的无解矛盾

孙怡董子健罕见露脸腿比老公的手臂还细女儿遗传妈妈优秀基因

原创董子健vs孙怡从乍见之欢到久处不厌这是爱情最美的样子

随机推荐

王源帅照写真合集

我要上热门#年轻时的郑裕玲,还记得她吗?

于途|凉生|姜生|杨洋|不疑|谭松韵|马思纯|井柏然_网易订阅

奥尔夫歌曲简谱《我爱我的小动物》

山河令q版五音 陈情令q版头像全部人物-图片大观-奇异网

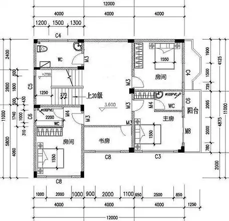
p> a href="#" data-lemmaid="5988308">房屋设计图 /a>是一种房屋的

黑白线稿橡皮章素材动漫魔道祖师蓝忘机

3. 南京信息工程大学