一家面包店设计(店铺设计平面施工图!)

相关图片

专卖店设计|空间|家装设计|z68173810 - 原创作品 - 站酷 (zcool)

蛋糕店面设计|空间|家装设计|double219 - 原创作品 - 站酷 (zcool)

三只松鼠零食订阅店门店设计方案|空间|家装设计|泛粥大爷_原创作品-

miumiu服装店铺设计 - 原创作品 - 站酷(zcool)

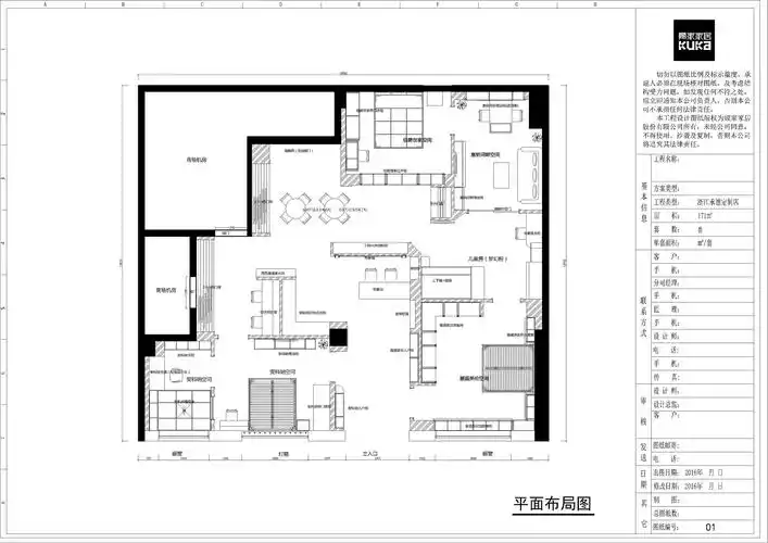
门店布局图-ppt精选_word文档在线阅读与下载_免费文档

随机推荐

孤独的风景黑白风格桌面壁纸

贺峻霖浪漫绿海##时代少年团楼间楼演唱会

动态花鸟鱼图片大全_百度图片搜索

我会将毕生的温柔都给你,浪漫的情侣头像动漫一男一女

蓝色系古风女生头像,真的太好看了吧!

比亚迪2022款唐ev,海豹联袂登场,续写新能源热销传奇|长春车展

祁隆都是你歌谱

40至50岁女人多尝试这样扎头发,实用气质又简单,跟我学一遍就会