王嘉尔lv品牌代言人##王嘉尔巴黎时装周撕漫男##王嘉尔的胸肌隔着

相关图片

王嘉尔嘎嘎jacksonyyds

王嘉尔嘉人杂志大片

彭于晏只排30名亚洲百大最帅面孔冠军是来自中国的

王嘉尔

王嘉尔 穿皮衣的酷盖小甜

随机推荐

洪欣早年高颜值照片惊艳网友,但她兼顾事业和家庭的样子才最美!

高级个性狼尾发 酷女生帅气短发_时尚发型 - 美发站

80年代台湾人的生活是什么样子的?侯孝贤的这部电影,全给揭露了

小预算小恐龙小朋友生日包间气球布置

古风古韵

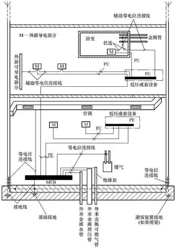
建筑防雷接地工程图的识读方法

文轩世界第一初恋

蒂芙尼休闲运动短裤女夏季新款显瘦宽松阔腿篮球裤运动休闲裤潮