金典老剧 #古装美女 #精彩影视剧剪辑 #明星娱乐圈 #经 - 抖音

相关图片

5部师徒恋爱题材古装剧:一部比一部虐心,花千骨,神雕堪称经典

佘诗曼演过的所有电视剧(佘诗曼演过的7部古装电视剧)

古装剧电视剧大全(古装剧电视剧大全免费观看)-情感知识库-动动脑

90后童年的30多部精彩难忘的古装电视剧:你是不是都全看过了呢?

张婷的主演电视剧(盘点张庭经典影视电视剧,一部成为经典,一部坏到

随机推荐

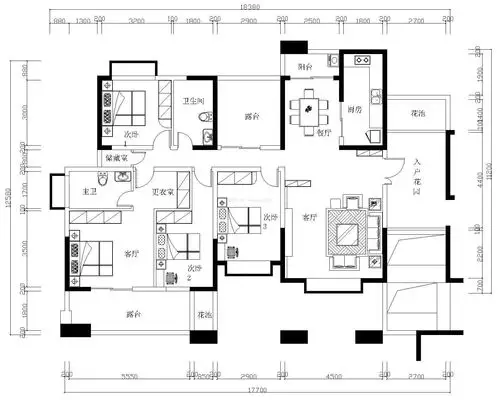
三室两厅最佳户型图

在金大侠的《天龙八部》之中,阿朱代表了乾达婆. - 抖音

lucky ozasec/lucky ozasec 蕾丝透视网纱裙装 连衣裙

鞠婧祎分享胶片风写真,抹胸裙造型清新甜美

图文苏打绿香港开个唱主唱吴青峰吟唱

顶级名媛朱珠:将门之后,与法拉利总裁恋爱,37岁嫁清华教师_拉波·埃尔

植选好豆奶 端午"豆"安康##植选植物好营养 轻盈无负担

何其有幸儿女双全多么令人向往的一家四口