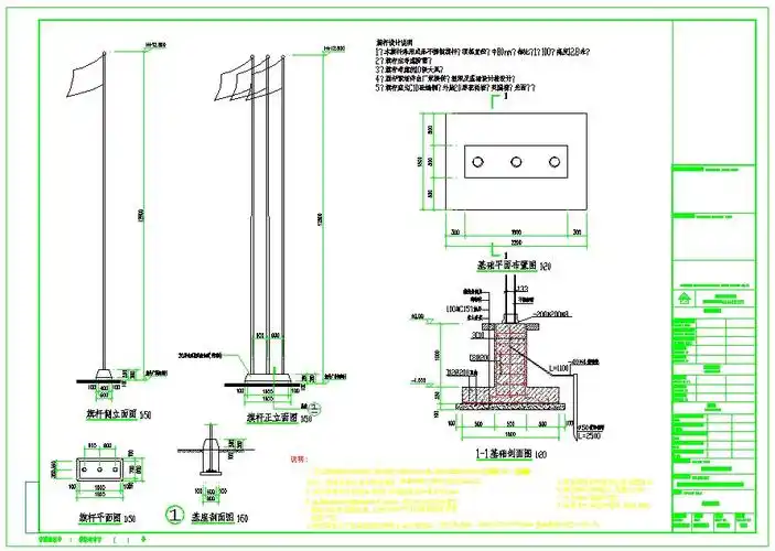
单杆国旗台施工图

相关图片

旗台

旗杆升旗台cad做法施工图详图原创

旗台详细施工图节点施工图

亳州市国旗杆基础制作阜阳旗杆旗台施工厂家

旗杆旗台cad施工详图5套[原创]

随机推荐

孙俪短发看着好"嫩",短刘海不遮脸秀明媚五官,状态一点不显老

世界各国的男神"发福"照片,小李子就算了,看到国内的有点忍不了

今天,我们要为大家带来关于当红明星周也的最新动态.

看似人畜无害竟然是全剧最狠的人 #锦绣未央 #毛晓彤 #dou是好剧安利

西安周边旅游攻略|蓝田流峪寺村.#创作灵感 #100个国庆必 - 抖音

透明全屏水印素材

雷惊鸿张赫烈火如歌

【明日方舟】一份特别的礼物(幽灵鲨×女博同人剧情)