某市防雷接地做法结构布置cad规划详图

相关图片

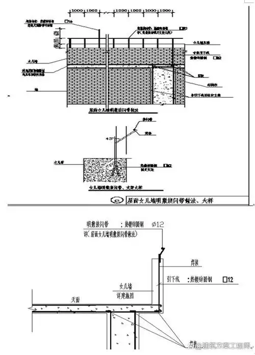
防雷接地

解剖室防雷接地平面图

施工现场电气工程防雷接地安装细部做法

很详细防雷接地的具体做法

防雷接地做法大样图.png

随机推荐

周杰伦《范特西》专辑封面.图片来源:qq音乐

因此,口袋君觉得, 这事儿和沈腾是否主演没有任何关系!

只要凑齐6个人就能解锁好朋友拍照新姿势快和好朋友们约起来吧67

来自于宇智波鼬的暴力穿三!(下)

刘耀文签名好像是团里面我觉得简单的

斗罗大陆:唐三和胡列娜注定了只能是敌人,可惜了她一番心思

玉米抗倒不抗倒,看这4点

冰丝无缝高腰内裤女士夏季薄无痕一片式收腹大码胖mm女式平角裤