车邻宝遮雨棚五菱货车货箱车棚三面掀开摆摊车篷防雨防晒遮阳雨篷 1.

相关图片

大连钢结构设计膜结构车棚

充电桩车棚7字型膜结构停车遮阳棚 户外广场景观棚电动车雨棚

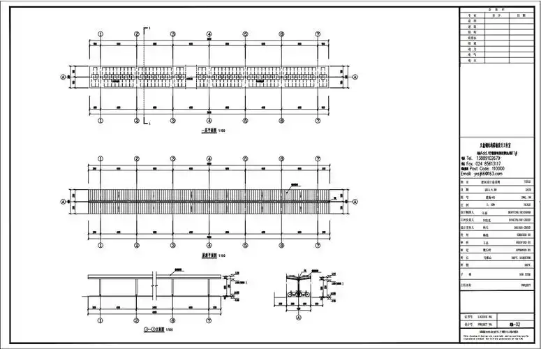
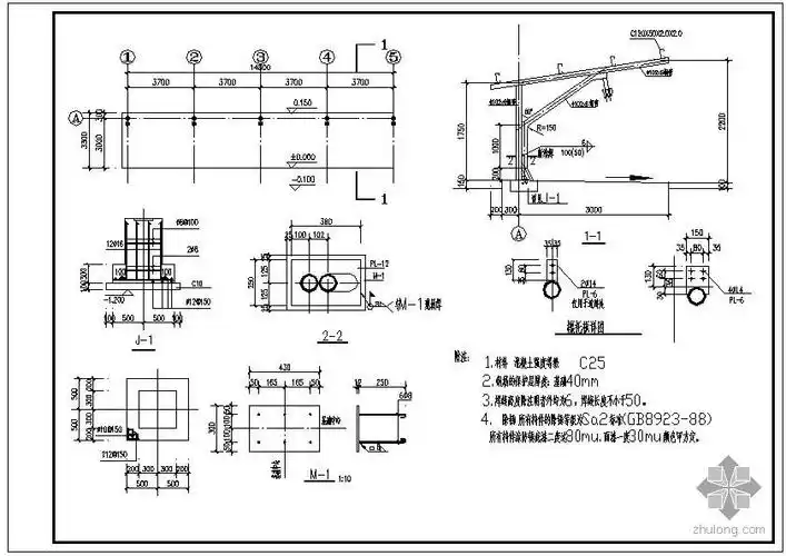
某膜结构停车棚施工图设计cad图可编辑标注详细

载货车加装车棚变身售货车,地摊创业入门车型

膜结构汽车车棚轿车车蓬子货车蓬子公交车雨棚小区停车棚

随机推荐

漂亮女人的两个和平手势

莫桑钻戒指女天使之吻5克拉钻戒 钻石戒指女结婚求婚情人节礼物女

牵手,爱情,浪漫壁纸,牵手,爱情,浪漫手牵手的爱情图片

画名柯人物江户川柯南

图文来了 #抖音壁纸 #抖音网红壁纸 #总有一款 - 抖音

《街头霸王》古烈的扫把头放下来是什么样子?

《精彩集锦》意志可以击穿顽石,却不能击穿你的心.——无极剑圣·易

一粒麦子简谱_一粒麦子简谱带和弦