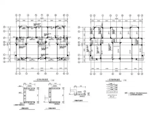
某中型3层砖混结构乡村民居楼全套建筑结构设计cad图纸

相关图片

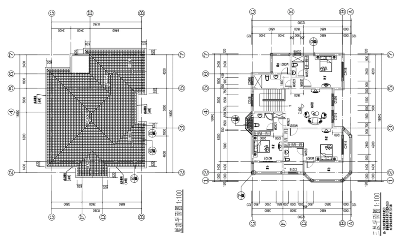
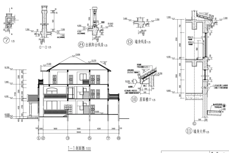
欧式坡屋面3层独栋别墅建筑设计施工图(含全套cad图纸)

住宅建筑图纸cad资料下载-三层洋房住宅混凝土框架结构施工图cad

某市小高层住宅建筑设计图纸-图一本资料为小高层住宅楼施工图,其中

欧式坡屋面3层独栋别墅建筑设计施工图(含全套cad图纸)

滁州市某家属院5层框架结构民居住宅楼全套建筑设计cad图纸(2套方案)

随机推荐

梅艳芳1010生日快乐

飞蓬多年生草本植物

但彭冠英将身高报矮了,其实才有机会拿到剧本和资源,不得不说,长太高

自制绘本儿童手工制作 益智图书diy幼儿园不织布故事书材料包亲子

古力娜扎白色羽毛露背上衣,微卷长发;美丽优雅,精致又迷人,魅力无限

南孚1号碱性电池大号电池视频

苏泊尔压力锅限压阀排气阀安全阀压力阀止开阀浮子阀高压锅配件

王劲松图片头像,王劲松头像_大山谷图库