厨房各功能区域立面尺寸详解

相关图片

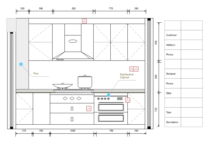
3u型厨房cad图纸-立面图1

乾龙纪彬凡连荣猴年吉祥北欧日系风格安装季高仪toto

包含欧式中式现代cad厨柜图纸素材资料,室内厨房橱柜装修设计平面立面

[分享]室内厨房cad立面图资料下载

各种厨房立面图符号,一起打造私人厨房!

随机推荐

tfboys日光旅行七周年演唱会

三清山最佳度假酒店希尔顿

表情包 拍桌子温馨提示: 手机获取表情:关注微信公众号,发送" id

舞台女王孟美岐录制腾讯视频 综艺《百分百歌手对战季》 孟美岐的solo

被遗忘的蛮牛,详细解读兰博基尼的几款经典车型_搜狐汽车_搜狐网

天山天池风景名胜区,位于新疆维吾尔自治区昌吉回族自治州阜康市境内

citrus

胜者——阿修罗十鬼蛇王马