8x9米实用农村小别墅户型_新款农村自建二层房子图纸 - 轩鼎房屋图纸

相关图片

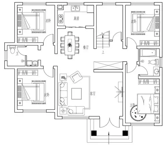
农村六款二层房屋设计图,主体毛坯造价十几万,占地不大却宽敞实 - 抖

两层经典别墅设计平面图大全

j220农村自建二层小别墅设计图纸全套

农村二层小别墅怎么设计?(两层小别墅农村设计图)

11x8米20万农村小别墅二层小别墅设计图农村房屋设计图

随机推荐

手绘卡通狮子肉摇尾巴可爱动态gif元素

2021最流行的袖子设计合集附服装袖子设计分类

《最美金秋在坝上》人像拍摄:宴年老师,枫叶缘老师,英丹老师,雨滴老师

国画 #国画花鸟 #斗方 #水仙 #国画山水 #手绘

呼呼~

中国人民解放军『转业军人证明书』国防部_其他证书/证件_唐宋元明清

叶大而光滑,其花色艳丽,有红,粉红,紫,白等多种颜色,初夏罂粟花落,约

原创华晨宇只是改变了一下裤鞋搭配就显高10cm不料火了