老房子改造开放厨房装修效果图

相关图片

老房改造记「非专业瞎捣鼓自己设计多图」

业主是一个幸福的三口之家,设计师对这个问题多多的老房子重新改造

130㎡精装房嫌弃效果太简单翻新改造成北欧风满满的高级感

农村房屋设计效果图赏析—土拨鼠装饰设计门户

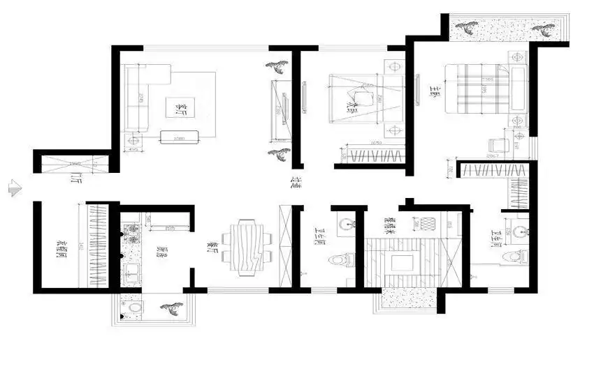
改造 户型图图片来自实创装饰上海公司在160平老房无印良品装修设计的

随机推荐

张馨予自己种的瓜熟了#张馨予之前种的瓜熟了,这看起来好甜啊!

渐变海报背景素材

可惜你不看怦然心动二十岁.

49岁古天乐依旧单身,经纪人否认古宣cp,网友大失所望_宣萱_合作_媒体

杨超越拍摄粉色系大片,有种回到春天桃花盛开的感觉,满满的青春元气

倚天屠龙记 赵敏 陈钰琪

儿童发型雕刻 #儿童美发 我想知道有多少是在家给孩子剪发的,你们

陕西云阳西红柿今日价格_百科-8s新商盟