现代简约风格别墅室内装修全套施工图-住宅装修-筑龙室内设计论坛

相关图片

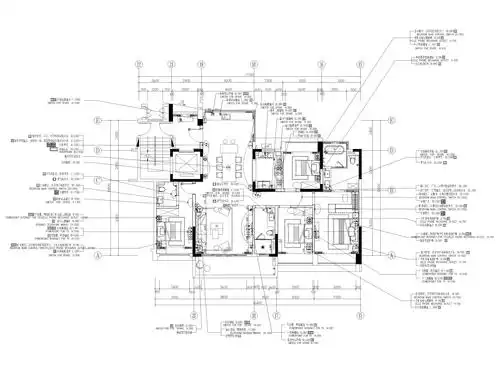
高层90户型施工图_施工图纸_室内设计联盟 - powered by discuz!

全套家装施工图绘图模板他来了#室内设计 #cad画图 #施工 - 抖音

中式风格全套施工图_施工图纸_室内设计联盟 - powered by discuz!

欧式香缇华府样板房b户型室内施工图设计(cad 实景图)

某星级酒店豪华客房室内装修设计cad全套施工图甲级院设计

随机推荐

妖神记ai高清手机壁纸:像龙羽音这样的女人,才更有征服欲望!

重温tvb80年代这几部经典古装剧集哪部是你的童年回忆

生日快乐卡通文字设计

一克拉钻戒轻奢优雅美得不留痕迹

小丑壁纸,锁屏与开屏稍后呼应的壁纸 全面屏手机壁纸

导演庞好细致解读"中年危机"

蓝凤蝶

钓鱼衣服冬天钓鱼服成套秋冬钓鱼服秋冬季防寒套装保暖冬天防水加q厚