课程设计辅导(单元式多层住宅设计)ppt

相关图片

多层住宅设计方案的完整cad完整的图纸

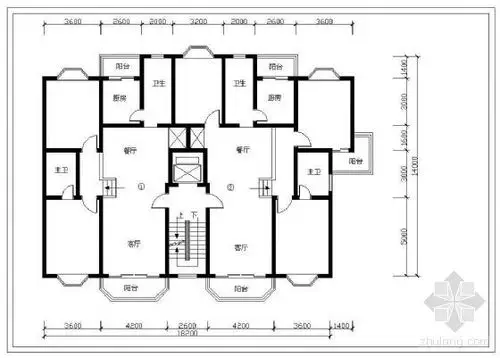
板式多层一梯二户三室一厅一卫户型图(92/92)

多层住宅户型平面-建筑户型图-筑龙建筑设计论坛

房屋建筑学设计cad图纸(单元式多层住宅设计)参考资料【392】

多层住宅户型设计图

随机推荐

易烊千玺×你(今天的大佬有点温柔)

其它 龙虎山 摄于2019年4月25日 写美篇正一观是正一道祖庭的象征.

时尚小男孩戴着眼镜,有趣的发型

明星街拍 | 杨幂

张艺兴新专辑莲海报图片39

图案大全 七巧板智力拼图小学生二年级一年级儿童数学教具套装教材

在演播室白色背景下的穿着红色衣服的美丽的长黑发女模特

牛人手绘李沁,这画得也太漂亮了,实在太厉害了