柴碧云烈焰红唇性感街拍写真图片45

相关图片

柴碧云inryng

柴碧云柴柴的穿衣搭配风格,让生活更多彩|妆容|裙子|发型|穿搭|高跟鞋

柴碧云发型是羊毛卷?看起来好有女人味

柴碧云复古质感性感写真图片77

柴碧云发型是羊毛卷?看起来好有女人味

随机推荐

华晨宇干净帅气写真图片

耶耶耶~#表情包 #无水印 - 抖音

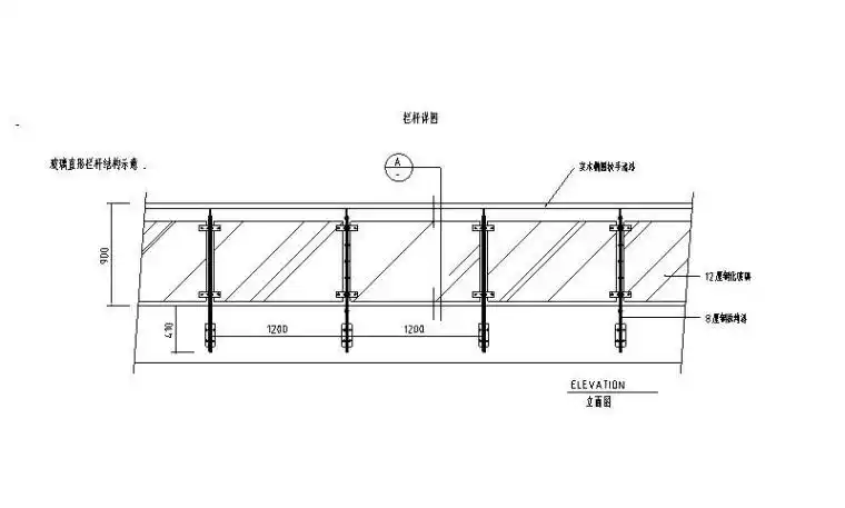
玻璃栏杆结构详图

胸外二科成功完成经胸骨柄"l"型切口切除复杂的颈胸结合部肿瘤术,刷新

非日常派对定档##虞书欣非日常派对

两个人同框画面 7.10号直播 林子闳杨宇腾_哔哩哔哩_bilibili

虞书欣永夜星河##今日星拍放送

第1162期中国画家拍卖成交指数王文芳2017年最高成交价前10幅作品