强劲御龙湾丨强劲·御龙湾建面约96㎡三房两厅两卫绝ban户型,全城臻藏

相关图片

江湾丽景三房户型图

三居两卫精品户型推荐

装修房套三单卫视野开阔户型方正地铁口旁

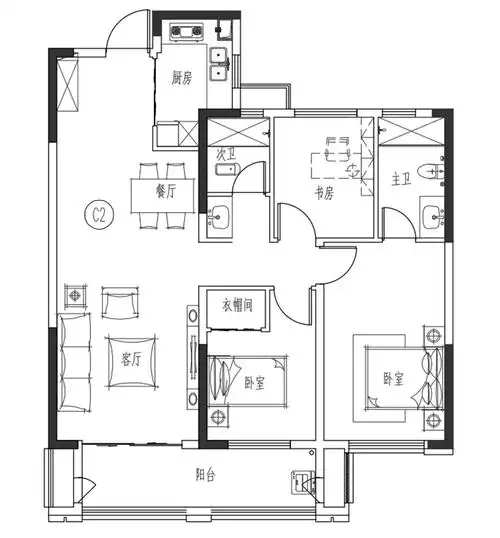
c2户型三房两厅两卫-3室2厅2卫-112.3㎡

建面约88平3房两卫户型图

随机推荐

钢铁侠马克85战甲钢铁侠马克85图片2022已更新今日图集

林志玲大变样,小腹隆起疑有孕,跑着去拉老公,细节暴露家庭地位_转型

童年吉他谱

张天爱吊带白裙性感写真桌面壁纸

易烊千玺半小时学会漂移##易烊千玺宝马新生代代言人

山河令疯批美人温客行不愧是凭借红衣封神的男人

人教版三年级下册音乐课件第三单元音乐家故事聂耳与义勇军进行曲共33

二年级《比一个数多几是多少》应用题画图分析数量关系第二次作业分析