探讨人工接地极的制作(内有简图)

相关图片

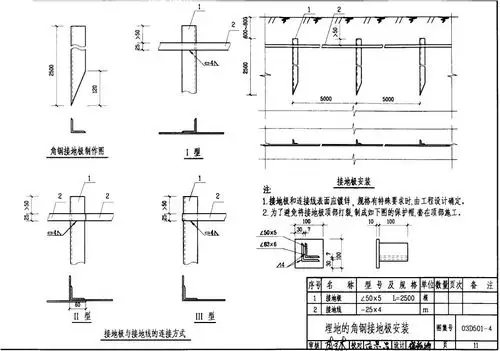
人工接地

4欧就是4欧姆,正规的接地极的做法

车间工作台需要做保护接地吗?很多人都答错了!

如何降低接地电阻值及人工接地制作安装示意图

人工接地体

随机推荐

莱阳的山,莱阳的水,跟不上山水华庭美(2020.4.

刘德华与妻子恩爱,遗憾的是只有一个女儿,女儿近照曝光,颜值高_朱丽倩

陈都灵现身首都机场,丸子头,手提吉他文艺范_北京

经典的仙剑奇侠传一,专心看女神

老照片:50年代的台湾生活

德云社明星夫妻,岳云鹏和老婆似兄弟,看孟鹤堂二婚老婆-沦陷了

围炉煮酒

培养低年级小学生写日记习惯