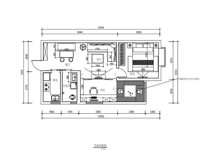
家的平面图

相关图片

请你运用所学知识完成以下任务:(1)绘制一幅自己家的平面图

当手绘图变成了我的家,成就感满满 96手绘的我家平面图 96 - 抖音

小小设计师——156班数学实践作业

我家客厅平面示意图--立新教育集团明德校区三年四班

您好,我家里要准备开始装修了,然后有很多困惑的地方想请教下大家谢谢

随机推荐

肖战画的端午粽子

大美圆明园3d复原图真实再现当年的宏伟壮观占地面积3000亩

原创恨不得靠修图换个头的杨紫,竟然也有修图师绝对不许p的地方?

十二星座谁最帅

【星空下和朋友露营烤肉】45分钟久坐提醒//煮水声/虫鸣蛙叫声/烤肉声

太美了!100张世界顶级美景

新疆五彩城 (2)

朝鲜韩国行政地图,韩国地图高清中文版 - 八维库便民查询网