木村拓哉年轻时神颜图片实在太迷人啦

相关图片

木村拓哉年轻时的颜值 #木村 - 抖音

开个木村拓哉美图楼

木村拓哉年轻时神颜图片实在太迷人啦

木村拓哉 takuya kimura的图片

木村拓哉年轻时神颜图片实在太迷人啦

随机推荐

9494万物皆可爱9494

十二星座公主简笔画 - 抖音

广州爱丽丝梦游仙境后花园摄影基地

龙湖景粼原著|以自然回敬自然,演绎山居盛境

金钟仁晒寸头自拍#寸头颜值依然能打!这头型太漂亮了!

刘宇宁宝曼兰朵品牌大使

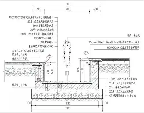
水池详图.

八月十五月儿圆,月圆人圆家团圆