锌钢楼梯扶手组装式楼梯栏杆彩色静电喷涂美观

相关图片

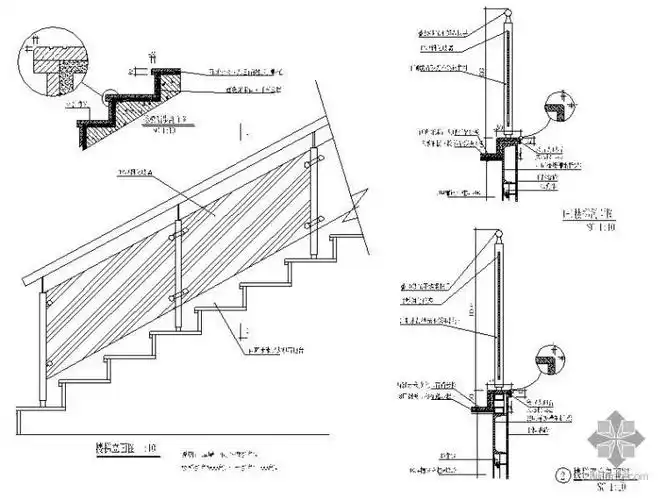
室内施工图钢结构楼梯踏步做法节点大样图

锌钢楼梯铁艺楼梯扶手钢楼梯基础为热镀锌管表面静电喷涂色彩多样

oeing钢板楼梯扶手整体定制室内别墅极简现代网红钢架结构整梯栏杆

项目描述 钢结构/网架工/打板/不锈钢 淮北濉溪县有不锈钢楼梯扶手

查看详情>> 立即下载 某钢结构楼梯做法节点构造详图

随机推荐

《名侦探皮卡丘》真人电影首个预告片公布

唯美小清新植物高清桌面壁纸高清大图预览1920x1080_风格壁纸下载_美

高清护眼壁纸小清新

美图系列##景甜# @景甜 登《时尚芭莎》二月新春封面.

那些刑场上的漂亮女死刑犯组图高清

创作灵感 男士发型 立体前刺,帅到爆-时尚视频-搜狐视频

英雄联盟2019糖果系列基兰皮肤高清原图查看

姜贞羽,静谧明媚,时尚不羁,酷飒不失妩媚写真组图.#姜贞羽