接地极安装示意图-布局2

相关图片

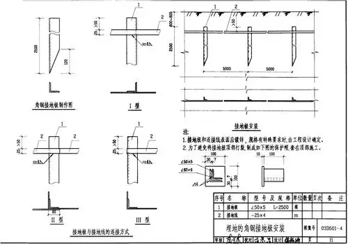
接地极做法示意图-model.pdf 1页

pd5-4-9 明敷接地引下线做法及安装

防雷接地大样图

关于避雷带的接地做法,请您查阅标准图集《防雷与接地装置 92dq13》.

d500~d502:《防雷与接地》 上册(2016年合订本)

随机推荐

金城花园

女人过了40岁头发建议剪短今年流行这3款酒窝发显年轻气质

帅气男生露腹肌和锁骨头像,帅哥露锁骨头像

飞机头可以说是打造型男的最好发型了,生活中很多普普通通的男士,只要

ui界面设计原型图阶段

淦-论au的那些事儿(穿越)-话本小说网

《爱自己》锁骨纹身!_纹身图案手稿图片_梁晨的纹身作品集

swin蔡徐坤q版卡通手绘人物二次元帅哥动漫