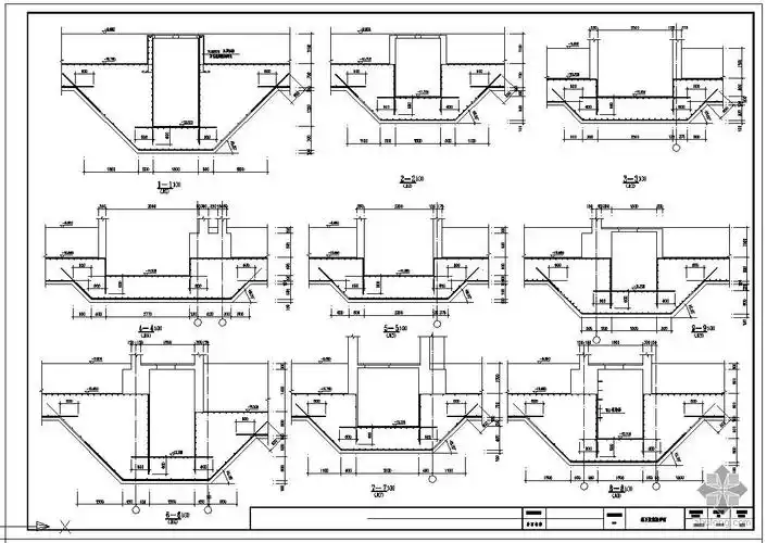
某筏板基础底板配筋节点构造详图

相关图片

[分享]学透16g-101图集构造,超实用!

活动 16g101平法图集,梁板式,平板式筏形基础平板钢筋构造

[资料]某筏板基础 节点大样详图

筏板基础知识详细解析

要结合图集11g101-3来看,图中的应该是个独立基础,300和200应该是图集

随机推荐

粤菜十大名菜

女人什么手相最有福气最好命会越来越富的女人手相水墨先生-卜安居

古风女素描简笔画

被155cm的王子文穿搭机场秀惊艳,短发造型搭黑色look显高又显瘦_个子

《龙珠超:布罗利》炫酷高清桌面壁纸

夜晚,背影,伤感,一个人,孤独,伤心,摄影,时光记忆夜晚伤感男人的背影

假发男宝宝短发中分可爱婴儿纹理烫帅气自然小男孩发型正太全头套

日本皇后美智子年轻时多美?说出来你或许不信,但老照片不会说谎