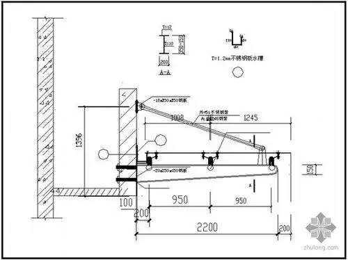
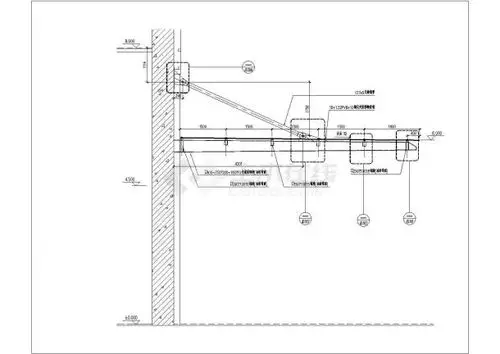
某大门雨棚设计cad施工详图

相关图片

某地的某轻钢雨棚设计施工图纸

s1079玻璃雨棚设计效果图

某大门雨棚设计cad施工详图

pc阳光板雨棚设计效果图

雨棚设计_某市某单位钢结构雨蓬结构施工cad图纸

随机推荐

继探班黄景瑜后,又被扒出甜蜜互动,迪丽热巴这次假戏真做了?

女星鞠婧祎的日常穿搭,一直是身姿娇小的女生搭配时可借鉴的成功范例

你们觉得哪个奥特曼最帅?

特色无骨鱼片我要买长袖工作服了冬天杀鱼手爽歪歪手艺人杀鱼刀工纯

系染发剂植物天然纯盖白发不伤发自然黑色染膏头发颜色染膏 紫红色

就算是平时不经常吃东北菜的朋友们,一口气说出三样东北菜也是不在话

颜值秀场 第22期 林青霞_网易订阅

原始欲望首页,秘密妻子的灵魂寄居在女儿体内原始欲望伦理爱情亲情