cad迷你画图下载 minicad软件下载-minicad客户端下载_图纸_苏轼_dwg

相关图片

cad迷你画图下载 minicad软件下载-minicad客户端下载_图纸_苏轼_dwg

cad怎么编辑文字大小调整cad文字大小技巧

建筑设计师的助手快速修改和编辑cad图纸

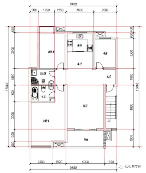
如何快速画好一套cad施工图?_建筑_详图_平面布置

cad施工设计图全套实操第4节平面图

随机推荐

鹿晗关晓彤在邓超家秀恩爱,邓超却一直在撮合迪丽热巴和鹿晗!

男生最潮寸头短发发型 高颜值寸头男神个个都帅爆了-男士短发-发型站

还有人喜欢麻衣学姐吗?

创意画黑白装饰画步骤图

维托贝斯特 10-21 17:18 订阅 点击查看更多订阅内容> 肌肉增长的

白色内裤女纯棉裆少女日系蕾丝可爱高中生学生女生中低腰三角裤头

原创李显复位太子后武则天已年逾八旬他为何还要发动神龙政变

黑色影视创意psd分层h5背景素材