纯玻璃栏杆施工很难?5分钟足够解决它的结构问题了!_材料施工_室内设

相关图片

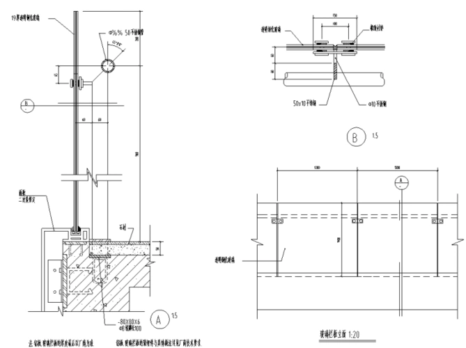
玻璃扶手通用施工图下载-华建工艺学会

玻璃-不锈钢栏杆节点详图-园林景观节点详图-筑龙园林景观论坛

纯玻璃栏杆施工很难?5分钟足够解决它的结构问题了!_材料施工_室内设

玻璃扶手通用施工图下载-华建工艺学会

玻璃栏杆省空间的做法_装修_玻璃楼梯扶手_家居家装_硬装_硬装设计

随机推荐

这个比心的动作,还是让人感觉很可爱呢.

赵丽颖早期旧照被赞甜妹,引起了网友热议,还有很多人觉得是她买的热搜

黑色炫酷架子鼓音乐png图片素材下载_黑色png_熊猫办公

田柾国怦然心动##田柾国腹肌

《半妖倾城》幽瞳为爱苏醒 米热接任"妖王"

优雅有力的穿衣风格,陈数46岁时的穿搭秘诀_衣服_形象_款式

长歌行电视剧海报图片高清下载

基督上帝耶稣文华油画像图片