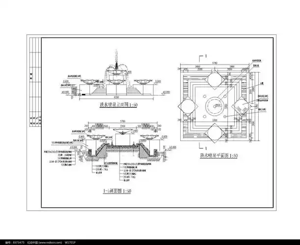
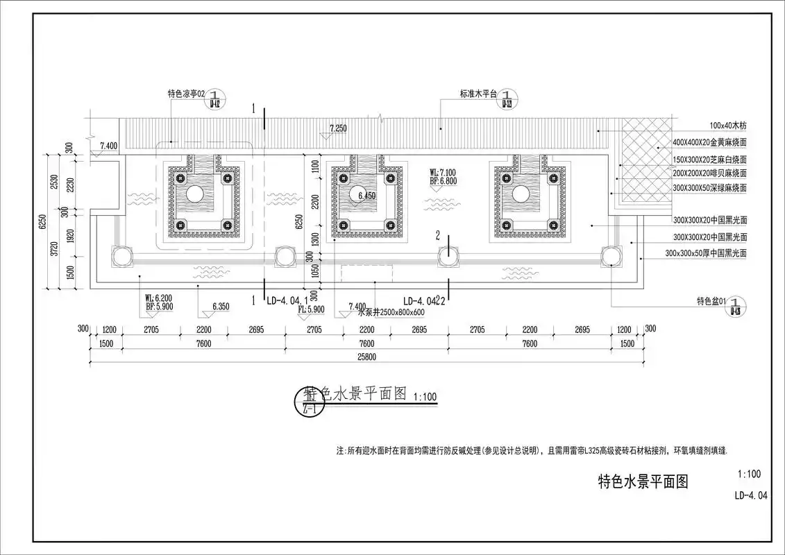
园林水景施工图图集

相关图片

水景专类园设计疯狂水作业

92 | 园林景观镜面水景施工图#景观设计 - 抖音

1.两者相辅相成 采用平面设计的构成原则,点,线,面.

4水景工程施工图设计

【园林快题干货】从基础到进阶系列:常见水体设计要点

随机推荐

男生"不油腻"的发型怎么选?试试这6款清爽短发,适合春夏剪

风中奇缘古装壁纸热播虐心剧风中奇缘

【欣赏】二次元小姐姐头像合集

有种"养成系"叫张子枫,不过一套白色羽毛裙,美到认不出_感觉_变化

美国警察部队拥有世界上一些最精锐和训练有素的警察队伍,他们的警车

南笙

降央卓玛

管螺纹尺寸表