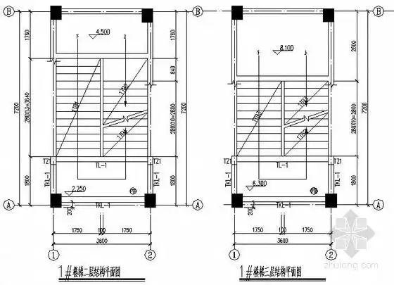
[分享]楼梯剖面图画法cad资料下载

相关图片

[分享]楼梯构造详图cad资料免费下载

楼梯的各种尺寸要求及公式汇总

[分享]施工图楼梯cad资料下载

室外庭院楼梯详图设计(cad)

120套楼梯详细cad施工图cad施工图集cad节点详图cad施工图纸

随机推荐

beyond乐队2005年香港告别演唱会之真的爱你

结婚请束怎么写 结婚请帖填写样本

原来张翰和魏大勋的身材比例这么好,身高一样的情况下腿比别人长好多

我们相爱吧刘雯直夸始源你是我的男朋友就很好

而女生们的梦想身高168却遇冷,排名最末.

见不到忘不了

微商男装货源招代理 时尚女装批发5到15元

刀郎前妻杨娜:生下女儿40天就跑路,刀郎红了后,问还能复合吗?