女款黑色双排扣职业西服

相关图片

朗姿黑色小西装2020年春季职业套装直筒西服上衣女外搭商场同款黑色

西装外套女韩版2021春秋新款宽松复古潮黑色小西装休闲西服

黑色西装套装女春秋2022年新款时尚女神范休闲职业西装裤子两件套

黑色西装外套女秋季2022新款小个子气质休闲毛呢加厚西服套装秋冬

外套女春秋 矮个子oona矮小个子xxs黑色西装女150cm宽松休闲春秋韩版

随机推荐

37岁彭于晏,脱发严重颜值下滑,究竟是怎么回事?

cachecache5330007490圆领连衣裙

没买过假发,假发贵吗?

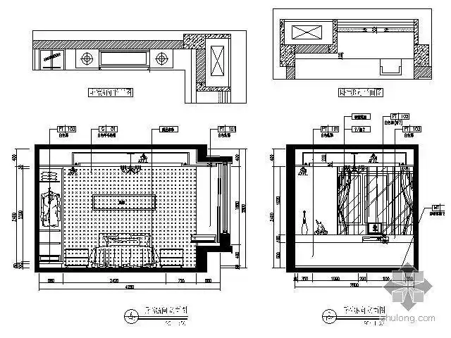
分享现代卧室立面图资料下载

择天记庄换羽肖宇梁

字体帮1944:淦 明日命题:摩尔庄园

鼠七匹·狼装联名款欧美街头风裤子男裤抖音同款美式oversize后面拉链

〔讨论〕严重的双下肢高压电击伤 - 修复重建和烧伤整形 -丁香园论坛